日 星期 | 网站首页
首页 >> 新闻资讯 >> 新闻

国内首试:天水有轨电车计划同时开行内燃动力观光车

2020-05-12   来源:本站   浏览次数:25
本文摘要:国内首试:天水有轨电车计划同时开行内燃动力观光车

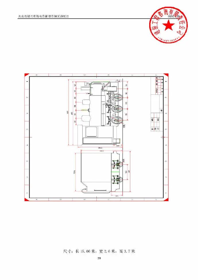
近日,天水通号有轨电车有限责任公司发布了天水市城市有轨电车新增车辆采购项目招标文件。此次招标计划新增两列有轨电车车辆,预算金额2720万元。

招标内计划增购的列车并不是常规的有轨电,而是仿蒸汽火车的内燃动车组。天水将在有轨电车运营正线上同时开行内燃动力观光车。这在国内是首次尝试。

招标文件显示,这列观光列车将由两节“上游型蒸汽机车外型”的内燃机车和三节“绿皮火车厢”的客车组成,机车能够仿制出喷气和鸣笛的效果,客车设有咖啡厅、餐厅,提供一系列娱乐功能。

本次招标的投标文件递交的截止时间(投标截止时间)为2020年5月22日10时30分。

业主单位要求第一列车辆需在2020年6月18日前在天水市有轨电车车辆段完成安装、调试,并满足投入运营条件;

第二列车辆不迟于第一列完成后10个日历天。


合作企业
友情链接